Denah Rumah 6×9 3 Kamar Tidur Tanpa Garasi – Hai sob, balik lagi dengan mimin tamvan yg selalu hadir kehadapan kalian dengan ragam penjelasan dan hal-hal menarik pada setiap perjumpaannya.
Dan jumpa kita kal ini mimin sajikan tamplan gambar ragam denah 6 x 9 kamar tidur tanpa garasi yg okeyy banget pokoknya sob. Penasaran akan hal tersebut, untuk itu simak sajian lengkapnya dibawah ini.
1.Denah Rumah 6×9 3 Kamar Tidur Tanpa Garasi Pertama
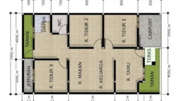
Berikut pada gambar pertama ini terdapat tampilan gambar denah rumah 6 x9 dengan ruangan yg terdiri dari 3 kamar tidur, 1 kamar mandi, dapur dan ruang tamu yg bersebelahan dengan ruangan dapur. Umumnya, lahan rumah seluas ini penggunaannya lebih diutamakan untuk ruangan utama seperti kamar tidur dan dapur.
Namun, pada denah ini terlihat konsep penggunaannya sedikit berbeda. Alih-alih mengoptimalkan luas lahan untuk ruang tidur, sang arsitek justru membuat sebuah lounge sekaligus ruang tamu yg cukup besar dibandingkan ruangan lainnya. Tampaknya, denah rumah ini lebih cocok bagi kalian yg sering menerima kunjungan tamu ya sob.
2. Denah Rumah 6×9 3 Kamar Tidur Tanpa Garasi Kedua
Banyak cara untuk menyiasati rumah yg tidak begitu luas. Salah satunya ialah tidak menambahkan sekat antar ruangan. Artinya setiap ruangan terhubung satu sama lain dan menimbulkan kesan luas. Lantai dasar pada gambar rumah 6×9 3 kamar tidur di atas alah salah satu contohnya. Begitu pintu utama dibuka, kalian akan langsung dihadapkan dengan ruang makan dan ruang keluarga. Ruangan ini dibiarkan terbuka dari dinding depan hingga dinding belakang.
3. Denah Rumah 6×9 3 Kamar Tidur Tanpa Garasi Ketiga
Ada kalanya, rumah berukuran minimalis jauh lebih diidamkan dibandingkan rumah berukuran luas. Nah, denah rumah ini salah satu contohnya. Seperti bisa lihat pada gambar diatas, rumah yg terdiri dari tiga kamar tidur ini memang terlihat serba pas-pasan. Terbukti dari lahan sisa yang dijadikan sebagai jalur lalu lintas tampak sempit seperti sebuah gang. Meskipun begitu, desain rumah ini dijamin tetap membuat kalian sekeluarga merasa nyaman, sob!
4. Denah Rumah 6×9 3 Kamar Tidur Tanpa Garasi Keeempat
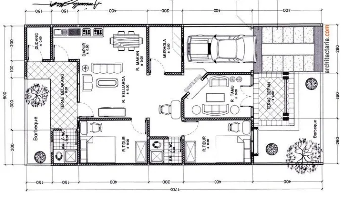
Berikut pada gambar diatas terdapat tampilan denah rumah dengan banyak sekali ruangan yg tersedia bahkan hadir juga lahan kolam renang , teras tambahan disisi lain ruangan, parkiran mobil, serta ruangan utama seperti kamar tidur, dapur, ruangan tamu, ruangan keluaraga, kamar mandi dan lainnya yg memliki ukuran yg cukup luas.
5. Denah Rumah 6×9 3 Kamar Tidur Tanpa Garasi Kelima
Rumah tanpa taman akan terasa begitu gersang. Oleh sebab itu, kalian perlu menambahkan area terbuka di depan atau belakang rumah. Contoh desain rumah 6×9 3 kamar tidur di atas punya car port untuk area parkir mobil. Sementara itu, di bagian depan sisi kiri terdapat teras dan taman. Untuk menambah sirkulasi udara dan cahaya alami, di bagian belakang rumah dapat ditambah dengan taman. Tak perlu terlalu besar, cukup 1 sampai 2 meter sahaja lebarnya.
6. Denah Rumah 6×9 3 Kamar Tidur Tanpa Garasi Keenam
Rumah satu lantai ini memiliki area yg cukup terbuka di bagian depan. Agar rumah tidak terkesan sempit, ruang keluarga, ruang makan, dapur tidak dipisahkan oleh pembatas apa pun. Sekat-sekat ruangan baru dapat ditemukan di area belakang, yaitu pada area kamar-kamar tidur. Untuk kamar tidur sendiri memang harus diberi sekat karena bagian ini masuk ke area privat. Denah rumah ini benar-benar memaksimalkan seluruh lahan untuk dijadikan ruangan yg fungsional. Dengan begitu, kalian dapat memiliki rumah dengan desain menarik walaupun dengan lahan yg tidak terlalu besar.
7. Denah Rumah 6×9 3 Kamar Tidur Tanpa Garasi Ketujuh
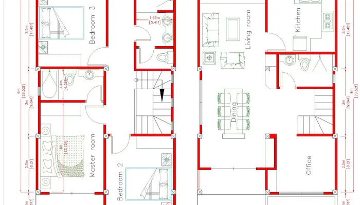
Apabila memiliki anggota keluarga berjumlah banyak, denah di atas berarti pas buat kalian sob. Hal demikian karena luas rumah 6×9 ternyata dapat disiasati agar memiliki 4 kamar tidur. Hal ini dilakukan dengan membuat tingkat atas pada hunian, sehingga memberikan lebih banyak ruang. Bagaimana, menarik bukan?
8. Denah Rumah 6×9 3 Kamar Tidur Tanpa Garasi Kedelapan
Sering menerima tamu dan ingin privasi keluargamu terjaga? Coba saja ikuti gambar rumah 6×9 3 kamar tidur di atas. Ruang tamu sengaja dibuat terpisah agar orang yg berkunjung tidak dapat melihat aktivitas semua penghuni rumah. Begitu masuk ke dalam, kamu akan langsung masuk ke area dapur. Meski begitu, masih ada cukup ruang untuk dijadikan sebagai area makan atau ruang keluarga.
9. Denah Rumah 6×9 3 Kamar Tidur Tanpa Garasi Kesembilan
Agar rumah tidak tampak sempit, area ruang tamu dan ruang keluarga sengaja dibuat menyatu. Apabila kalian sangat jarang menerima tamu, seluruh area ini dapat dijadikan sebagai ruang keluarga. Kamar utama punya ukuran lebih besar dibanding dua kamar lain. Selain itu, di dalamnya juga terdapat kamar mandi.
10. Denah Rumah 6×9 3 Kamar Tidur Tanpa Garasi Kesepuluh
desain rumah 6×9 tiga kamar tidur ini memiliki konsep yang sederhana. Lengkap dengan ruang tamu yg diatur terpisah dengan ruangan lainnya, setiap ruangan memiliki luas yg kurang lebih sama dengan sentuhan akhir berupa taman yg terletak pada areal belakang rumah lengkap dengan terasnya juga. Pada denah ini, sang arsitek mengoptimalkan ukuran tanah seluruhnya sebagai bagian dari ruang rumah utama. Selain tiga kamar tidur, ada dapur, kamar mandi dan toilet terpisah, serta sebuah ruang tamu seukuran kamar utama.
11. Denah Rumah 6×9 3 Kamar Tidur Tanpa Garasi Kesebelas
Kalian juga dapat membuat desain rumah 6×9 tiga kamar tidur yg hanya terdiri dari satu lantai saja. Pada denah ini terlihat ruang-ruang yg tersedia tampak cukup lengkap. Selain tiga kamar tidur, ada ruang tamu, ruang keluarga, dapur dan kamar mandi, serta sebuah ruang serbaguna di pojok kiri atas.
Cukup sudah sajian ragam gambar denah rumah 6 x 9 3 kamar tidur tanpa garasi yg terdapat diatas, semoga sajian kali ini dapat sangat berguna dan bermanfaat untuk kalian semua ya sob.
Sekian dan terimakasih atas kunjungannya ya sob.










